UID
(ترجمه و گردآوری از خانم تقوی)
متولد 1974 در هیروشیما
•1999فارغ التحصیل از دانشکده معماری (دانشگاه Kokushikan ) )
•برنده جایزه Takizawa وارد برای طراحی معماری
•پروژه نمایش داده شده در "طرح برتر دانشجویی" در نمایشگاه توکیو. (harumi گنبد، توکیو)
•تاسیس UIDمعماران 2003
•مدرس در Anabuki کامپیوتر گروه دانشکده طراحی معماری (2007-2010)
• مدرس در موسسه هیروشیما و فناوری (2011)
متخصص در
طراحی معماری
طراحی داخلی
مبلمان، نمایشگاه و طراحی محصول
طراحی شهری، برنامه ریزی، مشاوره و پژوهش
جوایز:
2013
LIXIL Design Contest 2013 1st prize : Villa Tomonoura
JIA Sustainable Architecture Awards 2013 Winning a prize : Peanuts
JIA CHUGOKU Architecture Award 2013, 1st Prize-The Japan Institute of Architects in CHUUGOKU : Peanuts
ARCASIA(Architects Regional Counsil Asia) Awards for Architecture 2013/2014 Goldmedal:nest , machi‐Building (Asia)
Best Debutant of the year 2013
JAAF Prize 1st Prize : Peanuts
Selected Architectural Designs of the Architectural Institute of Japan : atelier-bisque doll
Association for Children's Environment Award :Peanuts
15th e-1 award2011 Electric & Ecology Housing Architecture Contest Third Prize : pit house
LIXIL Design contest 2012 Third prize : machi-Building
LIXIL Design contest 2012 Winning a prize : +node
JIA Rookie of the Year award
2012
MODERN LIVING AWARD Best Six
JAAF Prize 2nd Prize : nest
JCD Design Award-Japanese Commercial Environment Designer Association : Silver Prize : peanuts
7th Hiroshima architecture Culture 2nd Prize : MORI×hako
7th Hiroshima architecture Culture 2nd Prize : nest
AR House Awards 2012 COMMENDED : nest
15th e-1 award2011 Electric & Ecology Housing Architecture Contest Grand Prize: machi-Building
THE 32ND INAX DESIGN CONTEST TOP19
2011
ARCASIA(Architects Regional Counsil Asia) Awards for Architecture 2011/2012 Goldmedal: atelier-bisque doll (Asia)
2011 JIA CHUGOKU Architecture Award 2011, 1st Prize-The Japan Institute of Architects in Chugoku Branch: nest
International Biennial Barbara Cappochin Award 2011 Best works: nest
AR House Awards 2011 COMMENDED (UK) : atelier-bisque doll
Selected Architectural Designs of the Architectural Institute of Japan : MORI×hako
2010
2010 The JIA Top 100 Architects Award, Special Prize-The Japan Institute of Architects
: atelier-bisque doll
2010 JIA CHUGOKU Architecture Award 2010, 2nd Prize-The Japan Institute of Architects
in Chugoku Branch: MORI×hako
14th e-1Award2010 Electric & Ecology Housing Architecture Contest Grand Prize:Rustic House
2009
JCD Design Award ‐ Japanese Commercial Environment Designer Association: Silver Prize:MORI×hako
2008 The JIA Top 200 Architects Award,Special Prize-The Japan Institute of Architects:MIKULAN
2008 Dedalo Minosse 2007/2008 International Prize For Commissioning A Building ‐ASSOARCHITETTI PRIZE UNDER 40: Holocaust Education Center, JAPAN
2007 Good Design Award Prize - Japan Industrial Design Promotion Organization; tomonoura @ cafe
2006 Dedalo Minosse 2005/2006 Commended Prize- ALA-Assoarchitetti:House in Utsumi
2005 The JIA Top 200 Architects Award,Special Prize-The Japan Institute of Architects:STeP
9th Electric Housing Architecture Contest Third Prize-:STeP
Good Design Award - Japan Industrial Design Promotion Organization: Proto-Quick-House
9th Wood One Competition, Third Prize: Step
13th Biennale 'IRAKA' Award, Japanese Roof Tile Design Competition,Gold Prize : Houses in Utsmi
2003 Chugokumokuzai 50th Anniversary Architectural Design Competition 3rd Prize: House in Utsumi
Good Design Award - Japan Industrial Design Promotion Organization: House in Utsumi
معرفی آثار:
یکی از معروف ترین کار های این معمار پروژه خانه pit house خانه گودال است.
Pit House 2011
principal use : house
structure: steel structure
site area : 95.41sqm
total floor area : 138.23sqm
building site : Okayama
completion date : 2011.10
structure design : Yasutaka Konishi
garden-build : Toshiya Ogino
photos : Hiroshi Ueda
خانه ی خود را در okayama نزدیک دریای seto بنا کرده ؛ این سایت بر روی تپه کوه Terraced که به عنوان یک مکان مسکونی توسعه یافته است این خانه برای یک خانواده 3 نفره در نظر گرفته شده است و دارای دید خوبی نسبت به شمال ویک متر بالاتر از سطح جاده ساخته شده است.
برای پایین نگه داشتن هزینه و بهترین استفاده از فضا اساس وپایه بنا یک متر پایین تر از از سطح زمین در نظر گرفته شده که نیازمند قالب های بتنی دقیق است و اشاره دارد این خانه در گودال است و از زمین جدا نشده است؛ در واقع شش نوع سطح به صورت دایره ای حفاری شده و با هسته سیلندر بتنی در مرکز متصل می شوند.
و با حدود 50 ستون باریک که سبب اتصال 2 سطح بر زمین و یکدیگر شده اند.
وهم چنین در بخش مرکزی خانه (راه پله) تخته سه لایی بکار رفته است.
او معتقد است به جای اتصال و پیوستگی محیط زیست وساختار با باز کردن یک پنجره و یک دیوار به سادگی ؛ به چگونگی ایجاد ساختار به عنوان چشم انداز و در کل تفکیک ناپذیر از محیط زیست فکر می کند.
این طراحی اجازه می دهد به ساکنان که دیدی 360 درجه با کیفیت عالی از دیوار ونرده ها و خانه های همسایه که آن را محاصره کرده اند داشته باشد.فضاهای داخلی درحقیقت یک فرمت از خارج است و به عنوان فضای جداشده از بیرون توسط دیوار نیستند .
او معتقد است با آگاهی کامل از ویژگی های منحصر به فرد محل سکونت کار می کند زیرا این تصمیم گیری همان چیزی است که در نهایت موجب ایجاد یک محیط راحت می شود.
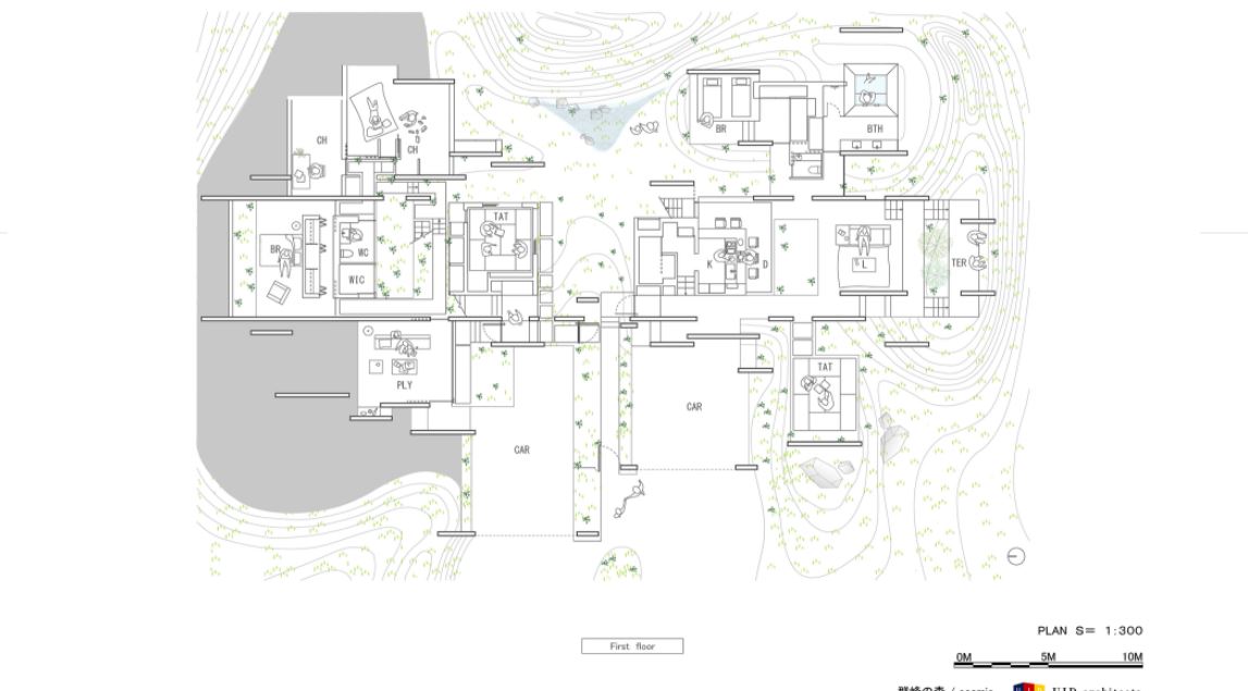
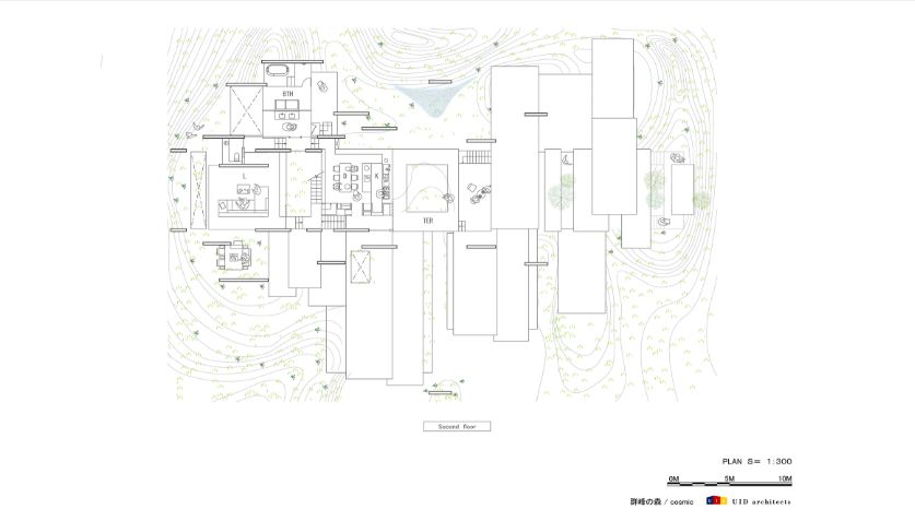
یکی دیگر از پروژ های این معمار خانه کیهانی uid cosmic است.
خانه مینیمالستی طراحی شده در ژاپن توسط uid است.
Architects: UID
Location: Japan
Architect In Charge: Keisuke Maeda
Area: 611 sqm
Year: 2014
Photographs: Hiroshi Ueda, Courtesy of UId
روش دیگری از گرد همایی فضاها که در این سایت به آن پرداخته شده است ؛دیوار و سقف در این طراحی هم چون ابرها که نور خورشید و نور مهتاب از آن عبور کرده و می درخشد.
از ویژگی های این خانه توجه ویژه به مرز ها و فریم ها است که بکار رفته است.اتصال کف به سقف بدون چارچوب تنها با شیشه در سرتاسر به صورت شمحو و تار میان فضاهای داخلی و خارجی است.
کف ساختمان از سنگ و اطراف آن با سنگریزه ها کاور شده است.فریم های مستطیلی طوری طراحی شده که در ادامه آنان تراس ها ایجاد شده است.و قسمت هایی برای اشیاء مختلف موبایل، ظروف و.... تعبیه شده است.
ساختار آن متشکل از فولاد و بتن مسلح است و سطح خارجی آن پوشیده از photocatalytic که این ماده سبب می شود خاک و دوده روی دیوار را با بارش باران شسته و از رنگ سفید پروژه محافظت می کند.
طبقه ی اول شامل سه اتاق خواب ودر مقابل یک حمام و یک آشپزخانه در مرکز و اتاق بازی و فضای سکون و دو فضای ناهار خوری است طبقه ی دوم نیز به عنوان یک سوییت در نظر گرفته می شود.
منبع:
www.archdaily.com/tag/uid-architects
http://abduzeedo.com/architect-day-uid-architects
http://www.dezeen.com/tag/uid-architects/











